Projekt

HEIMREAL-Wohlfühlhäuser sind hochwertige und umfangreich ausgestattete Häuser, welche belags- oder schlüsselfertig errichtet werden.

 

Alle HEIMREAL-Wohlfühlhäuser verfügen über mindestens 5 Zimmer, damit für Leben, Spielen und Arbeiten genügend Platz daheim ist. Durch die umfangreiche Ausstattung und dem Einsatz hochwertiger Materialien ist ein HEIMREAL-Haus die beste Anlage mit Wertsteigerungspotential.

 

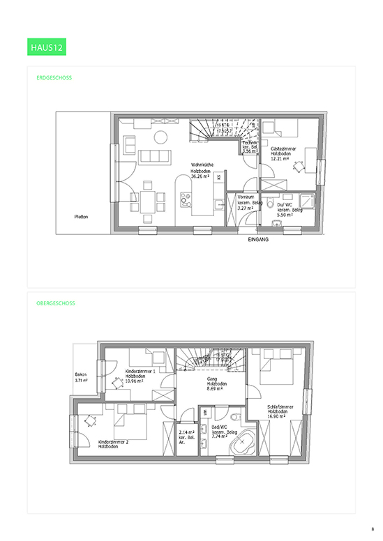
Das Projekt besteht aus einer Reihenhausanlage mit 2 Häusern. Die Häuser haben eine Wohnfläche von jeweils 125 m2, sowie ca. 101 m2 Garten. Jedes Haus verfügt über eine Dachterrasse und eine Gartenterrasse sowie über einen Autoabstellplatz mit 20 m2.

Ausführungsplanung 0%
Häuser noch verfügbar 0%

Kennzahlen zum Projekt

Grundstücksfläche

ca. 290 m²

Wohnfläche

ca. 125 m²

Gartenfläche

ca. 101 m²

Terrassenfläche

ca. 91 m²

Stellplatzfläche

ca. 20 m²

Bäder

1

WCs

2

Abstellräume

1

Terrassen

2



Stellplätze

1

Nutzungsart

Wohnen

Beziehbar

2023

Lagebewertung

sehr gut

Lärmpegel

Absolute Ruhelage

Bauart

Neubau

Zustand

Erstbezug

Baujahr

2023

Sonstiges

privater Seezugang

Energieausweis

HWB: 28,7 kWh/m² a

XXL-Terrasse

Photovoltaikanlage

Gartentechnik (Bewässerung, Rasenroboter)

BUS-System inkludiert

Österreichische Markenprodukte

Klimaanlage (optional)

Viele Zimmer: 5 Zimmer

Stromsteckdose für E-Auto

Parkplätze

Ausstattung

Bei der Ausstattung wurde Wert auf höchste Qualität und anspruchsvolles Design gelegt. Die Wohnräume sind mit Parkettböden ausgelegt, die Terrassen ziert robustes WPC-Holz und die großen Glasfronten lassen den Innen- mit dem Außenbereich verschmelzen. So entsteht unmittelbar beim Betreten der Räume ein schönes und komfortables Wohlfühlambiente.

 

 

Die konsequente Materialtreue setzt sich im Bad mittels großformatiger Feinsteinzeugfliesen fort, elegante Markensanitärobjekte strahlen Luxus und Lebensgenuss aus.

 

 

Die mittels Luftwärmepumpe betriebene Fußbodenheizung und wärmedämmenden Fenster sorgen für wohlig warme Temperaturen zu jeder Jahreszeit. Außenjalousien bzw. Außenrollläden und eine optionale Fußbodenkühlung halten die Räume in den Sommermonaten angenehm kühl.

Kennzahlen zur Ausstattung

Bauweise

massiv

Dachform

Flachdach

Ausbaustufe

Schlüsselfertig mit Bodenplatte

Boden

Fliesen, Laminat, Parkett

Belüftung

Mechanische Be- und Entlüftung

Heizung

Luftwärmepumpe

Energietyp

Niedrigenergiehaus

Balkon

Südbalkon/-terrasse

Fenster

3-Scheiben Isolierverglasung

Räume

Trennwände Gipskarton

WCs

Ideal Keramik

Bad

Bad mit Fenster, Badewanne, Dusche

Stellplatzart

Parkplatz

Anzahl Zimmer

5

umgebung

Fels am Wagram ist eine lebenswerte Gemeinde mit unzähligen Freizeitangeboten und ca. 2100 Einwohnern im Bezirk Tulln in Niederösterreich.

 

Nicht zuletzt ist Fels als Wagram-Gemeinde der Tradition des Weinbaus verpflichtet.

 

Seit 40 Jahren ist das Freibad Absdorf im ganzen Tullnerfeld ein Begriff für Entspannung und Erholung im Sommer. Vor einiger Zeit renoviert und mit einer attraktiven Wasserrutsche ausgestattet, bietet das Bad an heißen Sommertagen alles, was zur Abkühlung und Regeneration wünschenswert ist.

 

Die ausgezeichnete Infrastruktur der Gemeinde sowie die Nähe zur Blumenstadt Tulln an der Donau und der Stadt Stockerau, sowie die Lage im unmittelbaren Nahbereich der Donauauen in herrlicher Aussichtslage am Wagram bietet sehr hohe Lebensqualität.

Lage

Fels am Wagram bietet gute Verkehrsanbindungen in die Umgebung und ihre nahelie- genden Zentren, allen voran Tulln, das nur 26 Kilometer entfernt liegt, auch Wien ist mit dem Auto in nur 30 Mintuen erreichbar.

 

Vom Stadtzentrum sind es nur wenige Kilometer bis zur Autobahnauffahrt auf die S5, die eine direkte Verbindung nach Wien bietet. Auch die öffentlichen Verkehrsanbindun- gen lassen dank der zentralen Lage keine Wünsche offen und kommen Pendlern besonders zu den Stoßzeiten entgegen.

Kennzahlen zur Lage

Gesundheit

Arzt

2.400 m

Apotheke

6.400 m

Krankenhaus

22 km

Nahversorgung

Supermarkt

4.700 m

Bäckerei

2.700 m

Einkaufszentrum

9.500 m

Verkehr

Bus

4.300 m

Autobahnanschluß

3.500 m

Bahnhof

4.100 m

Kinder & Schulen

Neue Mittelschule

3.300 m

Volksschule

4.300 m

AHS, HTL

24 km

Universität

23 km

Kindergarten

3.300 m

Sonstiges

Bank

3.200 m

Geldautomat

3.200 m

Post

2.700 m

Feuerwehr

3.200 m

Downloads

Plan Erdgeschoß

Traubenweg 14

Preisinformation

Exposè

weitere projekte

Informieren Sie sich auch über unsere anderen Projekte.

Realitäten für Generationen

Sie interessieren sich für dieses Projekt?

Dann freuen wir uns über Ihre Kontaktaufnahme!